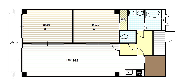
京都市西京区の賃貸マンション 平成23年リフォーム 64.35㎡ 2LDK募集 阪急・桂駅まで徒歩5分の好立地!1階がスーパーで日々の生活にも便利!TV付オートロック・シャワー付洗面台・ウォシュレット・2口ガス設置可キッチン・などの設備!広々としたLDK14.4帖!「南東向き」で日当りも良好♪
| 住所 | 最寄駅 | 賃料 | 敷金(保証金) | 間取 | 専有面積 | 
|---|---|---|---|---|---|
| 共益費 | 礼金(敷引) | 方位 | 築年数 | ||
| 〒615-8072 京都市西京区桂木ノ下町  | 
								阪急京都本線 桂 徒歩 5分 阪急嵐山線 上桂 徒歩 25分 JR東海道本線京都線 桂川 徒歩 25分 阪急京都本線 西京極 徒歩 25分  | 
								87,000円 | 
								なし | 
								2LDK | 
								64.35㎡ | 
							
| 9,500円 | 
								1ヶ月 | 
								南東 | 1984年 8月  | 
							
| 所在階 | 4階 | 建物階数 | 6階建 | 
|---|---|---|---|
| 総戸数 | 35戸 | 構造 | RC造(鉄筋コンクリート造) | 
| 間取り詳細 | 洋6×洋6×LDK14.4 | 現況 | 空室 | 
| 駐車場 | 近隣 14300円(税込) | 契約年数 | 2年 | 
| 設備条件 | バス・トイレ別・シャンプードレッサー・洗面台・ウォシュレット・ウォームレット・ガスコンロ設置可・ガスキッチン・ケーブルテレビ・インターネット対応・オートロック・モニタ付インターホン・エレベーター・室内洗濯機置場・駐輪場・専用ゴミ置き場・エアコン・通風良好・眺望良好・2人入居可・2階以上・収納スペース・押入 | ||
| 周辺環境 | スーパー [こちら] コンビニ [こちら]  | 
							||
| 備考 | 更新料:賃料の1ヶ月分 賃貸保証システム加入:要 【オンラインシステムについて】 当店ではお部屋探しから、申込~契約手続きまでを ご来店いただくことなく、全て完了できるオンラインシステムをご用意しています! 詳細につきましてはお気軽にお問い合わせくださいませ。  | 
							||
| お問い合わせ先 | 
									株式会社京都賃貸Five(ファイブ)四条烏丸店 〒600-8491 京都府京都市下京区鶏鉾町482 オフィス・ワン四条烏丸 904号 TEL:075-585-4080 FAX:075-585-4081  | 
 
		QRコードを読み込むと、 
この物件の情報を携帯から 見ることが出来ます。  | 
|











































