明治館北大路 201
外観写真
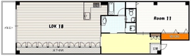
間取り図
その他写真
京都市北区の賃貸マンション 室内オールリフォーム 73.25㎡ 1LDK募集!地下鉄・北大路駅エリアに大理石調の高級感あるオシャレなデザイナーズのお部屋!3口IHシステムキッチン、追焚機能付オートバス、浴室乾燥機などハイグレード仕様♪リビングルームは18帖タイプで広々快適な空間でくつろぎの間♪
お問い合わせ番号:85203
| 住所 | 〒603-8165 京都府京都市北区紫野西御所田町 |
|---|---|
| 最寄駅 | 京都市営地下鉄烏丸線 北大路 徒歩 10分 京都市営地下鉄烏丸線 鞍馬口 徒歩 14分 |
| 賃料 | 100,000円 |
| 共益費 | 10,000円 |
| 敷金(保証金) | 1ヶ月 |
| 礼金(敷引) | 2ヶ月 |
| 間取 | 1LDK |
| 方位 | 南 |
| 専有面積 | 73.25㎡ |
| 築年数 | 1982年 7月 |
| 所在階 | 2階 |
| 建物階数 | 4階建 |
| 総戸数 | 8戸 |
| 構造 | RC造(鉄筋コンクリート造) |
| 間取り詳細 | 洋11×LDK18 |
| 現況 | 空室 |
| 駐車場 | 近隣 14,000円(税別) |
| 契約年数 | 2 年 |
| 設備条件 | バス・トイレ別・追い焚き・シャンプードレッサー・ウォシュレット・浴室乾燥機・ウォームレット・システムキッチン・カウンターキッチン・IH・電化・光ファイバー・BSアンテナ・インターネット対応・オートロック・モニタ付インターホン・ディンプルキー・デザイナーズ・室内洗濯機置場・駐車場・駐輪場・専用ゴミ置き場・エアコン・通風良好・眺望良好・2人入居可・2階以上・洗面所独立・リフォーム済・クローゼット・トランクルーム |
| 周辺環境 | スーパー [こちら] コンビニ [こちら] |
| 備考 | 更新料:新賃料の1ヶ月分 賃貸保証システム加入:要 【オンラインシステムについて】 当店ではお部屋探しから、申込~契約手続きまでを ご来店いただくことなく、全て完了できる オンラインシステムをご用意しています! ※店舗では、感染症による、安全対策をした上で安心して お部屋探しをして頂けるよう営業しております。 |
| お問い合わせ先 |
京都賃貸Five(ファイブ)京都駅前店 TEL:075-353-6570 |
|
京都賃貸Five(ファイブ)四条烏丸店 TEL:075-585-4080 |
お問い合わせ番号:85203
京都の賃貸を探す
![]()
![]()

