パデシオン京都五条 5F
外観写真
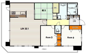
間取り図
その他写真
京都市右京区の分譲賃貸マンション 2014年築 79.86㎡ 3LDK募集 阪急・西京極駅エリアに「東南角部屋」日当たり良好なお部屋♪TV付オートロック、システムキッチン(3口ガス・食洗機付)、追焚機能付フルオートバス、浴室乾燥機、ウォシュレットなど充実設備♪さらに、敷地内ガレージ1台無料!
お問い合わせ番号:86256
| 住所 | 〒615-0054 京都市右京区西院月双町 |
|---|---|
| 最寄駅 | 阪急京都本線 西京極 徒歩 10分 阪急京都本線 西院 徒歩 14分 JR山陰本線 丹波口 徒歩 25分 京福電鉄嵐山本線 西院 徒歩 16分 |
| 賃料 | 200,000円 |
| 共益費 | 込 |
| 敷金(保証金) | 1ヶ月 |
| 礼金(敷引) | 2ヶ月 |
| 間取 | 3LDK |
| 方位 | 南 |
| 専有面積 | 79.86㎡ |
| 築年数 | 2014年 12月 |
| 所在階 | 5階 |
| 建物階数 | 7階建 |
| 総戸数 | 72戸 |
| 構造 | RC造(鉄筋コンクリート造) |
| 間取り詳細 | 洋6×洋5×和5×LDK22.1 |
| 現況 | 空室 |
| 駐車場 | 有 1台無料 |
| 契約年数 | 2年 |
| 設備条件 | バス・トイレ別・追い焚き・シャンプードレッサー・洗面台・ウォシュレット・浴室乾燥機・ウォームレット・システムキッチン・カウンターキッチン・ガスキッチン・食器洗浄機・光ファイバー・BSアンテナ・CSアンテナ・インターネット対応・オートロック・モニタ付インターホン・宅配ボックス・防犯カメラ・ディンプルキー・分譲賃貸・高級賃貸・エレベーター・床暖房・室内洗濯機置場・駐車場・駐輪場・管理人・専用ゴミ置き場・通風良好・眺望良好・2人入居可・2階以上・洗面所独立・リフォーム済・クローゼット・収納スペース・押入 |
| 周辺環境 | スーパー [こちら] コンビニ [こちら] |
| 備考 | 更新料:賃料の1ヶ月分 賃貸保証システム加入:要 【オンラインシステムについて】 当店ではお部屋探しから、申込~契約手続きまでを ご来店いただくことなく、全て完了できる オンラインシステムをご用意しています! ※店舗では、感染症による、安全対策をした上で安心して お部屋探しをして頂けるよう営業しております。 ※ 室内写真は同じマンション内別タイプの参考画像になります。 |
| お問い合わせ先 |
京都賃貸Five(ファイブ)四条烏丸店 TEL:075-585-4080 |
お問い合わせ番号:86256
京都の賃貸を探す
![]()
![]()

