ペガサスプラザ 605
外観写真
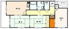
間取り図
その他写真
京都市伏見区の賃貸マンション 室内リフォーム 59.69㎡ 3DK募集 京阪・藤森駅エリアに「更新料ナシ」「角部屋」のファミリータイプのお部屋!オートロック・エレベーター・独立洗面台・2口ワイドガスキッチン・光ファイバー対応などの設備♪南向きバルコニーで日当たり良好!便利な4WAYアクセス可♪
お問い合わせ番号:86298
| 住所 | 〒612-0029 京都市伏見区深草西浦町5丁目 |
|---|---|
| 最寄駅 | 京阪本線 藤森 徒歩 2分 京都市営地下鉄烏丸線 竹田 徒歩 12分 近鉄京都線 竹田 徒歩 12分 JR奈良線 稲荷 徒歩 14分 |
| 賃料 | 75,000円 |
| 共益費 | 7,000円 |
| 敷金(保証金) | 1ヶ月 |
| 礼金(敷引) | 10万円 |
| 間取 | 3DK |
| 方位 | 南 |
| 専有面積 | 59.69㎡ |
| 築年数 | 1990年 2月 |
| 所在階 | 6階 |
| 建物階数 | 7階建 |
| 総戸数 | 15戸 |
| 構造 | SRC造(鉄骨鉄筋コンクリート造) |
| 間取り詳細 | 洋6×和6×和4.5×DK7.5 |
| 現況 | 空室 |
| 駐車場 | 近隣 14.000円(税別) |
| 契約年数 | 2年 |
| 設備条件 | バス・トイレ別・洗面台・ウォシュレット・ウォームレット・ガスキッチン・光ファイバー・インターネット対応・オートロック・防犯カメラ・角部屋・エレベーター・室内洗濯機置場・駐輪場・エアコン・通風良好・眺望良好・2人入居可・2階以上・プロパンガス・リフォーム済・クローゼット・収納スペース・押入 |
| 周辺環境 | スーパー [こちら] コンビニ [こちら] |
| 備考 | 更新料:無料 賃貸保証システム加入:要 【オンラインシステムについて】 当店ではお部屋探しから、申込~契約手続きまでを ご来店いただくことなく、全て完了できる オンラインシステムをご用意しています! ※店舗では、感染症による、安全対策をした上で安心して お部屋探しをして頂けるよう営業しております。 |
| お問い合わせ先 |
京都賃貸Five(ファイブ)四条烏丸店 TEL:075-585-4080 |
お問い合わせ番号:86298
京都の賃貸を探す
![]()
![]()

