パレスコート・二条 203
外観写真
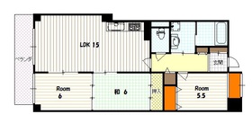
間取り図
その他写真
【ファミリーさんにオススメ♪】JR・地下鉄二条駅徒歩2分の好立地が魅力!3LDKの日当たり良好な南向きのお部屋☆稀少な敷地内ガレージ有♪TVモニタ付インターホン、エレベーター、ウォシュレット、シャンプードレッサー、ガスコンロ設置可キッチン等設備完備☆商業施設やスーパー、病院等近隣施設も充実♪
お問い合わせ番号:88438
| 住所 | 〒604-8381 京都市中京区西ノ京職司町 |
|---|---|
| 最寄駅 | 京都市営地下鉄東西線 二条 徒歩 2分 JR山陰本線 二条 徒歩 2分 阪急京都本線 大宮 徒歩 15分 |
| 賃料 | 142,000円 |
| 共益費 | 10,000円 |
| 敷金(保証金) | 1ヶ月 |
| 礼金(敷引) | 1ヶ月 |
| 間取 | 3LDK |
| 方位 | 南 |
| 専有面積 | 67.5㎡ |
| 築年数 | 2000年 5月 |
| 所在階 | 2階 |
| 建物階数 | 10階建 |
| 総戸数 | 32戸 |
| 構造 | SRC造(鉄骨鉄筋コンクリート造) |
| 間取り詳細 | 洋6×洋5.5×和6×LDK11.5 |
| 現況 | 空室 |
| 駐車場 | 近隣 25,000円(税別) |
| 契約年数 | 2年 |
| 設備条件 | バス・トイレ別・シャンプードレッサー・洗面台・ウォシュレット・ウォームレット・システムキッチン・ガスコンロ設置可・ガスキッチン・光ファイバー・BSアンテナ・インターネット対応・モニタ付インターホン・エレベーター・室内洗濯機置場・駐車場・駐輪場・専用ゴミ置き場・通風良好・眺望良好・2階以上・洗面所独立・クローゼット・収納スペース・押入 |
| 周辺環境 | スーパー[こちら] コンビニ[こちら] |
| 備考 | 更新料:賃料の1ヶ月分 賃貸保証システム加入:要 ※写真は同マンション別のお部屋です。 【オンラインシステムについて】 当店ではお部屋探しから、申込~契約手続きまでを ご来店いただくことなく、全て完了できるオンラインシステムをご用意しています! 詳細につきましてはお気軽にお問い合わせくださいませ。 |
| お問い合わせ先 |
京都賃貸Five(ファイブ)四条烏丸店 TEL:075-585-4080 |
お問い合わせ番号:88438
京都の賃貸を探す
![]()
![]()

