ラフィネ西京極 104
外観写真
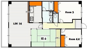
間取り図
その他写真
京都市右京区の賃貸マンション 室内リフォーム 69.02㎡ 3LDK募集 阪急・西京極駅エリアに「南向き2面バルコニー」で日当り良好なファミリータイプ!オートロック・エレベーター・独立洗面台・カウンターキッチン・BS・光ファイバー対応など設備!「西京極駅まで徒歩4分の好立ち、スーパー徒歩3分♪
お問い合わせ番号:88739
| 住所 | 〒615-0821 京都市右京区西京極北裏町 |
|---|---|
| 最寄駅 | 阪急京都本線 西京極 徒歩 4分 阪急京都本線 西院 徒歩 25分 JR東海道本線京都線 西大路 徒歩 26分 |
| 賃料 | 88,000円 |
| 共益費 | 12,000円 |
| 敷金(保証金) | 5万円 |
| 礼金(敷引) | 20万円 |
| 間取 | 3LDK |
| 方位 | 南 |
| 専有面積 | 69.02㎡ |
| 築年数 | 1997年 7月 |
| 所在階 | 1階 |
| 建物階数 | 6階建 |
| 総戸数 | 20戸 |
| 構造 | RC造(鉄筋コンクリート造) |
| 間取り詳細 | 洋5×洋4.4×和6×LDK14 |
| 現況 | 空室 |
| 駐車場 | 近隣 15,000円~16,000円(税別) |
| 契約年数 | 2年 |
| 設備条件 | バス・トイレ別・洗面台・ガスコンロ設置可・カウンターキッチン・ガスキッチン・光ファイバー・BSアンテナ・ケーブルテレビ・インターネット対応・オートロック・防犯カメラ・エレベーター・室内洗濯機置場・駐輪場・専用ゴミ置き場・通風良好・2人入居可・1階限定・洗面所独立・リフォーム済・クローゼット・収納スペース・押入 |
| 周辺環境 | スーパー[こちら] コンビニ[こちら] |
| 備考 | 更新料:賃料の1ヶ月分 賃貸保証システム加入:要 退去時クリーニング代・30,000円(税別)要 【オンラインシステムについて】 当店ではお部屋探しから、申込~契約手続きまでを ご来店いただくことなく、全て完了できるオンラインシステムをご用意しています! 詳細につきましてはお気軽にお問い合わせくださいませ。 |
| お問い合わせ先 |
京都賃貸Five(ファイブ)四条烏丸店 TEL:075-585-4080 |
お問い合わせ番号:88739
京都の賃貸を探す
![]()
![]()

