コト北小路 2F
外観写真
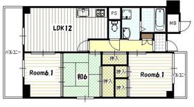
間取り図
その他写真
京都市上京区のとくゆうちん 平成13年築 67.5㎡ 3LDK募集 地下鉄・今出川駅エリアに礼金&更新料ナシ!南向きバルコニー・リビング12帖の明るいお部屋♪防犯カメラ、エレベーター、シャンプードレッサー、2口ガスコンロ設置可、室内洗濯機置場など完備♪スーパーマーケットなども近く便利な好立地♪
お問い合わせ番号:89293
| 住所 | 〒602-8461 京都市上京区北小路中之町 |
|---|---|
| 最寄駅 | 京都市営地下鉄烏丸線 今出川 徒歩 17分 京福電鉄北野線 北野白梅町 徒歩 19分 京都市営地下鉄烏丸線 鞍馬口 徒歩 24分 |
| 賃料 | 125,000円 |
| 共益費 | 9,500円 |
| 敷金(保証金) | 1ヶ月 |
| 礼金(敷引) | 1ヶ月 |
| 間取 | 3LDK |
| 方位 | 南 |
| 専有面積 | 67.5㎡ |
| 築年数 | 2001年 2月 |
| 所在階 | 9階 |
| 建物階数 | 9階建 |
| 総戸数 | 16戸 |
| 構造 | 鉄骨 |
| 間取り詳細 | 洋6.1×洋6.1×和6×LDK12 |
| 現況 | 空室 |
| 駐車場 | 近隣 18,000円~ |
| 契約年数 | 2年 |
| 設備条件 | バス・トイレ別・シャンプードレッサー・洗面台・ガスコンロ設置可・ガスキッチン・防犯カメラ・角部屋・エレベーター・室内洗濯機置場・駐輪場・通風良好・2人入居可・クローゼット・収納スペース・押入 |
| 周辺環境 | スーパー [こちら] コンビニ [こちら] |
| 備考 | 担当者のココがおすすめ! 地下鉄・北大路駅エリアに礼金&更新料ナシ!南向きバルコニーで日当たり良好!2LDKの明るいお部屋が募集となりました♪お部屋は防犯カメラ、エレベーター、シャンプードレッサー、2口ガスコンロ設置可、室内洗濯機置場、クローゼットなど設備も充実しておりますので快適にお過ごしいただけます♪ またお近くにはスーパーマーケットやコンビニなどのお買い物施設も充実しており、とっても便利な好立地です♪このお部屋で新しい生活を始めてみませんか? ※賃貸保証システム加入必要 入居時:契約賃貸+共益費の総額25% (入居後は1年毎に1万円) とくゆうちんは、世帯の所得に応じて家賃補助額が変動します。また、入居の際には一定の資格が必要です。とくゆうちん期間終了後は、再契約が可能です。 |
| お問い合わせ先 |
京都賃貸Five(ファイブ)四条烏丸店 TEL:075-585-4080 |
お問い合わせ番号:89293
京都の賃貸を探す
![]()
![]()

